環鏈鬥式提升機簡介
環鏈鬥式提升機也可以叫做環鏈式鬥式提升機,是環形料條帶動料鬥提升物料的設備,是採用混合式或重力卸料,挖取式裝料的高效提升設備。
全有生産的環鏈鬥式提升機是牽引件用優質合金鋼高度圓環鏈。中部機殼分單、雙通道兩種形式爲機内重錘箱恒力自動張緊。鏈輪採用可換輪緣組合式結構。使用壽命長,輪緣更換工作簡便。下部採用重力自動張緊裝置,能保持恒定的張緊力,避免打滑或脫鏈,同時料鬥遇到偶然因素引起的卡殼現象時有一定的容讓性,能夠有效地保護下部軸等部件。 适用於輸送堆積密度小於1.5t/m3易於掏取的粉狀、粒狀、小塊狀的底磨琢性物料。如煤、水泥、碎石、砂子、化肥、糧食等。TH型鬥式提升機用於各種散狀物料的垂直輸送。适用於輸送粉狀、粒狀、小塊狀物料,物料溫度在250℃以下。
全有環鏈鬥式提升機技術特點:
1.輸送量大,相同鬥寬的TH型與HL型相比,輸送量增大近一倍。
2.採用瞭組裝式鏈輪。有輪體、輪緣用高強度螺栓聯接而成。在鏈輪磨損到一定程度後,可擰下螺栓,拆換輪緣,更換方便,且節約拆料、降低瞭維修費;
3.下部採用瞭重錘杠杆式張緊裝置,即可實現自動張緊。一次安裝後不需調整,又可以保持恒定的張緊力,從而保證機器的正常運轉,避免瞭打滑或脫鏈;
4.提升高度運行平穩可靠,噪音小,維護方便。
5.改進機型的提升輸送量比普通機型提高30%以上。
6.牽引件爲低合金高強度園環鏈,經适當的熱處理後,具有很高的抗拉強度和耐磨性,使用壽命長。本提升機爲混合或重力方式卸料,掏取式裝料,适用輸送堆積密度不大於1.5t/m3的物料的粉狀、粒狀、小塊狀的低磨琢性物料,物料的溫度不得超過250度。
環鏈鬥式提升機參數
| 型 号 | TH160 | TH250 | TH315 | TH400 | TH500 | TH630 | TH800 | TH1000 | TH1250 | ||||||||||
| 料鬥型式 | zh | sh | zh | sh | zh | sh | zh | sh | zh | sh | zh | sh | zh | sh | zh | sh | zh | sh | |
| 輸送能力,m 3 /h | 19 | 30 | 30 | 48 | 35 | 59 | 58 | 94 | 73 | 118 | 114 | 185 | 150 | 240 | 240 | 360 | 360 | 540 | |
| 料鬥 | 料鬥容量(l) | 1.2 | 1.9 | 3 | 4.8 | 3.75 | 6 | 5.9 | 9.5 | 9.3 | 15 | 14.6 | 23.6 | 24 | 38 | 38 | 60 | 60 | 95 |
| 鬥距(mm) | 350 | 450 | 512 | 688 | 936 | 936 | 1001 | ||||||||||||
| 鏈條 | 園鋼直徑 x節(mm) | φ12X45 | φ18X64 | φ22X86 | φ24X86 | φ24X86 | φ28X92 | ||||||||||||
| 單鏈條破 斷強(KN) | ≥170 | ≥320 | ≥480 | ≥560 | ≥560 | ≥660 | |||||||||||||
| 料鬥運動 速度 (m/s) | 1.3 | 1.2 | 1.4 | 1.5 | 1.6 | 1.6 | 1.6 | ||||||||||||
| 傳動鏈輪轉數 (r/min) | 62.5 | 46.8 | 42.5 | 37.6 | 35.8 | 31.8 | 30.5 | 30.5 | 28 | ||||||||||
| 輸送物料的 最大塊度(mm) | 20 | 25 | 35 | 40 | 50 | 60 | 75 | 85 | 100 | ||||||||||
注釋:上表爲TH型160、200、250型鬥(dòu)式提升機技術參(cān)數表,表中料鬥(dòu)容積爲盛水容積,輸送量按此鬥(dòu)容計算時爲100%填充。
1.表中鬥(dòu)容爲計(jì)算鬥(dòu)容,輸送量按填充系數0.6計(jì)算得出。
2.TH型鬥(dòu)提機(jī)料鬥(dòu)用途:
Zh--中深鬥(dòu):輸送濕(shī)粘性物料,如糖、濕(shī)細沙等。
Sh--深鬥(dòu):輸送重的粉狀至小塊(kuài)狀物料,如水泥、砂、煤等。
3.HL型鬥(dòu)提機(jī)料鬥(dòu)用途:
Q--淺園底料鬥(dòu):輸送潮濕、易結(jié)塊、難抛出的物料,如濕沙、濕煤等。
S--深園底料鬥(dòu):輸送幹(gàn)燥的、松散的、易抛出的物料,如水泥、煤塊、碎石等。
4.張緊(jǐn)力計(jì)算:
G=40+0.232·H
式中:Q--輸(shū)送量(t/h) H--提升高度(mm) G--張緊(jǐn)力(kg)
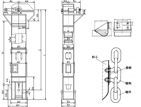
環鏈提升機結構圖紙
料鬥把物料從下面的儲藏中舀起,随著(zhe)輸送帶或鏈提升到頂部,繞過頂輪後向下翻轉, 鬥式提升機将物料傾入接受槽内。帶傳動的鬥式提升機的傳動帶一般採(cǎi)用橡膠帶,裝在下或上面的傳動滾筒和上下面的改向滾筒上。鏈傳動的鬥式提升機一般裝有兩條平行的傳動鏈,上或下面有一對傳動鏈輪,下或上面是一對改向鏈輪。鬥式提升機一般都裝有機殼,以防止鬥式提升機中粉塵飛揚。
環鏈鬥式提升機圖片
環鏈鬥式提升機鏈條
環(huán)鏈鬥(dòu)式提升機箱體
環(huán)鏈鬥(dòu)式提升機料鬥(dòu)
環(huán)鏈鬥(dòu)式提升機頭尾内部圖片
廠家鏈條安裝說明書
正確的安裝TH型環鏈鬥式提升機可以保證設備在使用過程中避免發生不必要的一些故障,影響到生産的正常進行,而TH型環鏈鬥式提升機的環鏈作爲設備的牽引件,正確的安裝更是關系著整套設備能否正常使用的關鍵,爲瞭方便運輸,鬥式提升機的鏈條在發貨的時候都是做成八米一條的長度,整箱裝在一起進行打包。到達提升機工作現場的時候再進行裝配鏈接。
在發貨的時候,鏈條的兩個連接端都是被銷子固定的,在鏈條裝配鏈接之前需要先把一根鏈條的銷子卸掉。
爲瞭防止在拆卸銷子的時候鏈條會變形,都會提前裝上一塊墊片。墊片多數是使用鋼管加工,在加上墊片之後,可以使用手錘或者是鏈條拆裝器進行拆卸銷子。銷子拆掉之後使用手錘和拆裝器把鏈條的兩端進行連接,上号銷子。
在提升機料條連接的時候需要把鏈條裝在鏈輪上,一條條的進行安裝。鏈條都連接安裝完畢瞭,再進行料鬥的安裝。
提升機料鬥是在有三個門的殼體上安裝的,安裝時裝上螺栓和平墊,使用的力氣要均勻,也不能擰的太近瞭。
篩分篩選機械
- 石墨粉振動篩
- 灰乳轉篩
- 振網篩
- 水力篩
- 泥石分離機
- 平面往複篩
- 活性炭振動篩
- 砂石篩
- 盤選篩
- 除土篩
- 制砂滾動篩
- 金剛砂振動篩
- 鑄造篩砂機
- 陶粒砂成品篩
- 泥漿分砂機
- 分砂機
- 圓型振動篩
- 分級振動篩
- 醫藥振動篩
- 粉體篩分選篩
- 雙質體高頻微粉振動篩
- 顆粒分離振動篩
- 自動清理振動篩
- 磁懸浮振動篩
- 篩砂機
- 篩草機
- 篩料機
- 激振器式脫水篩
- 大型滾筒篩
- 糖,鹽業專用搖擺篩
- 圓盤搖擺篩
- 搖擺振動篩
- 超聲波直線篩
- 超聲波搖擺篩
- 垃圾滾筒篩
- 電動振篩機
- 方形振動篩
- 篩土機
- 圓形振動篩
- 重型振動篩
- 細粉篩
- 微粉篩
- 複振篩
- 選礦機
- 滾動篩
- 澱粉振動篩
- 顆粒振動篩
- 紅棗分級機
- 電動驗粉篩
- 食品用振動篩
- 石英砂振動篩
- 輥篩
- 砂石骨料振動篩
- 粉末振動篩
- 分級篩
- 洗煤振動篩
- 液體振動篩
- 振蕩篩
- 石子振動篩
- 塗料振動篩
- 釉料過濾篩
- 尿素分級篩
- 珍珠岩專用篩
- 碳素專用篩
- 振動砂石分離機
輸送機械
- 管式螺旋輸送機
- 移動式螺旋輸送機
- 垂直螺旋輸送機
- 蛟龍輸送機
- 粉煤灰輸送機
- 冷卻輸送機
- 闆式鏈條輸送機
- 耐高溫輸送機
- 食品級輸送機
- 折疊皮帶機
- 水冷螺旋輸送機
- 闆式輸送機
- 拉鏈機
- 振動整列輸送機
- 礦用輸送機
- 波紋擋邊輸送機
- 瀝水鏈闆機
- 電機振動水平輸送機
- 鍋爐刮闆除渣機
- 無軸螺旋輸送機
- 污泥輸送機
- 刮闆機(刮闆輸送機)
- 鏈鬥輸送機
- 伸縮式皮帶輸送機
- 真空上料機
- 帶式輸送機
- 鱗闆機
- 移動式皮帶輸送機
- 大傾角輸送機
- 皮帶輸送機
- 螺旋輸送機
- 振動輸送機
- 鏈闆輸送機
- 滾筒輸送機
- 網帶輸送機
- 埋刮闆輸送機
給料機械
- 無塵投料站
- 鏈條式提升機
- 喂料機
- 自動給料機
- 螺旋給料機
- 給礦機
- 雙螺旋給料機
- 圓盤式給料機
- 棒條振動給料機
- 槽式給料機
- 擺式給料機
- 活化振動給煤機
- 振動放礦機
- 闆式喂料機
- 甲帶給料機
- 電磁振動給料機
- 電機振動給料機
- 往複式給料機
- 圓盤給料機
- 螺旋給料機
- 闆式給料機
- 振動給料鬥
- 葉輪給料機
糧食機械
配件及其他
相關文章:
專家咨詢 全有機械爲您解答有關(guān)環鏈鬥(dòu)式提升機各種疑惑
我們有著(zhe)專業的技術團隊,爲您提供求購、使用、維護、參(cān)數等方面的疑問解答,可在線聯系或者電話聯系!


常見鬥式提升機是通過緊固在牽引膠帶或者是牽引鏈條上的料鬥,環繞在提升機頭輪與尾輪之間,從(cóng)而構成閉(bì)合結構。通過與頭輪相連的驅動裝置來作爲動力,驅動頭輪運動。在此同時,下部和底輪相連的張緊裝置可以使牽引件得到必要的張緊力來維持牽引件的正常運轉。

料鬥把物料從下面的儲藏中舀起,随著(zhe)輸送帶或鏈提升到頂部,繞過頂輪後向下翻轉,鬥式提升機将物料傾入接受槽内。帶傳動的鬥式提升機的傳動帶一般採用橡膠帶,裝在下或上面的傳動滾筒和上下面的改向滾筒上。鏈傳動的鬥式提升機一般裝有兩條平行的傳動鏈,上或下面有一對傳動鏈輪,下或上面是一對改向鏈輪。鬥式提升機一般都裝有機殼,以防止鬥式提升機中粉塵飛揚。 1、傳動裝置中採用瞭圓柱型減速器,並(bìng)配有逆止裝置,使得傳動裝置結構緊湊,實現瞭柔性傳動,既能使運轉平穩,又能使電機減速器及牽引件得到保護,更能使物料在停機時保持

D型鬥式提升機由運行部分(料鬥與牽引膠帶),帶有傳(chuán)動滾筒的上部區段,帶有拉緊滾筒的下部區段,中間機殼,驅動裝置,逆止制動裝置等組成,适用於(yú)向上輸送松散密度ρ<1.5t/m3粉狀、粒狀和小塊狀的無磨琢性和半磨琢性散狀物料,如煤、砂、焦末、水泥、碎礦石等。






