香蕉篩簡介
香蕉振動篩是以外形來定義的,簡稱香蕉篩,具有箱式振動器和多段不同傾角篩面的直線振動篩,篩箱的形狀與香蕉相似。主要用於細粒含量高的大、中粒級物料的粒度分級,亦可用於脫水、脫介和脫泥等作業(細粒指粒度小於篩孔尺寸一半以下的顆粒)。香蕉形振動篩是在直線振動篩上注入香蕉形多段篩面的專有技術設計而成的。在入料端有一較大的斜坡篩面,随後緊接著以一定數目的角度逐級下降,址到出粒口爲止,入料端的斜坡篩面可使更多的物料通過篩面時有較高的篩分速度和較薄的物料分層。因爲大塊物料較快地穿過陡坡,這種較早地分層使細的顆粒更快的靠近篩面,能相對不受阻礙地通過縫隙,所以,香蕉形振動篩具有極高的篩分效率和高於傳統分級篩1.5-2倍處理量的特點,是先進、受歡迎的篩分機械産品。
香蕉篩工作原理
香蕉型振動篩分機在入料端有一斜坡面,先以34°開始,緊接著(zhe)以一定數目的角度下降到大約爲10°的出料端爲止。篩面採用不同傾角的折線形式,從入料端到出料端物料層厚度是不變。各段篩面上物料量與流速比值穩定、料層高,呈現均勻狀态,篩分效率顯著提高,比相同有效面積振動篩的處理量提高1-2倍,對於(yú)細粒含量高,特别是物料中料度占分級粒度尺寸小於(yú)1/2的物料含量較大時,香蕉型振動篩分機具有極高的篩分效率。
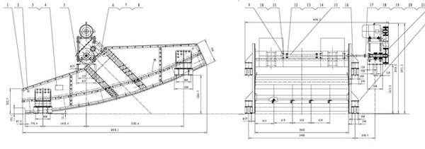
結構組成圖紙
香蕉篩結構圖紙
香蕉篩主要由篩箱、篩網、激振器、減振彈簧和下座架等組成。香蕉篩是由電動機和激振器作爲振動源,激振器主要是由偏心軸、皮帶輪、軸承及軸承座等組成,激振器安裝在篩箱側(cè)闆上,並(bìng)由電動機通過三角皮帶或軟連接與其相連,電動機帶動偏心軸旋轉,産生離心慣性力,迫使篩箱振動。
香蕉篩圖片
使用廠家須知
香蕉篩使用廠家維護維修知識:1、建議制作支撐架,以挂吊備用篩面。
2、每班檢查篩格壓緊裝置,如有松動則應壓緊。
3、經常檢查密封條,發現磨損或有缺陷應該及時更換。
4、篩格應該經常取出,定期檢查篩面是否破損或凹凸不平,篩孔是否堵塞等。
5、每班檢查進料箱的連接是否松動,如果間隙變大,引起碰撞,會使設備破裂。 6、振動篩雖然無需潤滑油,每年仍然需要大修一次,更換襯闆,對兩道篩面進行修整等。振動電機要拆下檢查,並給電機軸承換油,如果軸承損壞,則要更換
7、每班檢查篩體支撐裝置,觀察中空橡膠墊有無明顯變形或者脫膠現象,當橡膠墊破損或者過渡壓扁時,應同時更換兩塊中空橡膠墊。
1、對振動篩篩子進行定期檢查時所發現的問題,振動篩應進行修理。振動篩修理内容包括及時調整三角帶拉力,更換新帶,更換磨損的篩面以及縱向墊條,更換減振彈簧,更換滾動軸承、傳動齒輪和密封,更換損壞的螺栓,修理篩框構件的破損等。
2、篩框側闆及梁應避免發生應力集中,振動篩因此不允許在這些構件上施以焊接。振動篩對於下橫梁開裂應及時更換,側闆發現裂紋損傷時,應在裂紋盡頭及時鑽5mm孔,然後在開裂部位加補強闆。激振器的拆卸、修理和裝配應由專職人員在潔淨場所進行。
3、振動篩拆卸後檢查滾動軸承磨損情況,振動篩檢查齒輪齒面,振動篩檢查各部件聯接情況,振動篩清洗箱體中的潤滑回路使之暢(chàng)通,振動篩清除各結合面上的附著(zhe)物,振動篩更換全部密封件及其他損壞零件。
香蕉振動篩軸承損壞預防知識:
振動篩是使用振子激振所發作的複旋型振蕩而作業的。振子的上旋轉重錘使篩面發作平面回旋振蕩,而下旋轉重錘則使篩面發作錐面反轉振蕩,其聯合作用則使篩面發反複振蕩。在正常作業中,如何防止振動篩軸承損壞,下面咱們一起來探讨一下:當設備偏心塊在長時間使用後掉落或許偏心塊巨細不共同時,直線振蕩篩激振器股動對稱的偏心塊布局發作高速工作。會招緻設備轉速反常。此刻要及時替換偏心塊布局,包管直線振蕩篩的兩個傾向塊巨細共同,工作平衡。直線振蕩篩的軸承在轉速反常後,很容易發作沖突和溫升。當直線振蕩篩的軸承短少光滑油劑或光滑油劑增加不符合設備需求,招緻振動篩迷宮密封設備呈現阻塞後,會使軸承布局溫升跨越規則規模值,此刻要及時查看設備光滑體系,包管光滑油劑足夠衛生,若發現阻塞表象則要安裝軸承進行徹底的衛生;密封圈若呈現損壞或許軸承在磨損後呈現開裂等表象時,要及時對密封圈和軸承進行替換,從頭調整直線振蕩篩後重。
輸送機械
- 管式螺旋輸送機
- 移動式螺旋輸送機
- 垂直螺旋輸送機
- 蛟龍輸送機
- 粉煤灰輸送機
- 冷卻輸送機
- 闆式鏈條輸送機
- 耐高溫輸送機
- 食品級輸送機
- 折疊皮帶機
- 水冷螺旋輸送機
- 闆式輸送機
- 拉鏈機
- 振動整列輸送機
- 礦用輸送機
- 波紋擋邊輸送機
- 瀝水鏈闆機
- 電機振動水平輸送機
- 鍋爐刮闆除渣機
- 無軸螺旋輸送機
- 污泥輸送機
- 刮闆機(刮闆輸送機)
- 鏈鬥輸送機
- 伸縮式皮帶輸送機
- 真空上料機
- 帶式輸送機
- 鱗闆機
- 移動式皮帶輸送機
- 大傾角輸送機
- 皮帶輸送機
- 螺旋輸送機
- 振動輸送機
- 鏈闆輸送機
- 滾筒輸送機
- 網帶輸送機
- 埋刮闆輸送機
提升機械
- 雙鬥提升機
- 翻鬥提升機
- TD鬥式提升機
- TH提升機
- NE型提升機
- TB垂直鬥式提升機
- td160鬥式提升機
- 垂直上料機
- 水泥提升機
- 螺旋垂直提升機
- 單鬥提升機
- 畚鬥提升機
- 撈坑脫水鬥式提升機
- 挖鬥提升機
- 鬥式提升機(鬥提機)
- 闆鏈鬥式提升機
- 環鏈鬥式提升機
- 皮帶鬥式提升機
- 垂直提升機
- Z型提升機
- 垂直振動提升機
- 物料提升機
給料機械
- 無塵投料站
- 鏈條式提升機
- 喂料機
- 自動給料機
- 螺旋給料機
- 給礦機
- 雙螺旋給料機
- 圓盤式給料機
- 棒條振動給料機
- 槽式給料機
- 擺式給料機
- 活化振動給煤機
- 振動放礦機
- 闆式喂料機
- 甲帶給料機
- 電磁振動給料機
- 電機振動給料機
- 往複式給料機
- 圓盤給料機
- 螺旋給料機
- 闆式給料機
- 振動給料鬥
- 葉輪給料機
糧食機械
配件及其他
相關文章:
專家咨詢 全有機(jī)械爲您解答有關(guān)香蕉篩各種疑惑
我們有著(zhe)專業的技術團隊,爲您提供求購、使用、維護、參(cān)數等方面的疑問解答,可在線聯系或者電話聯系!


香蕉型振動篩分機在入料端有一斜坡面,先以34°開始,緊接著(zhe)以一定數目的角度下降到大約爲10°的出料端爲止.篩面採用不同傾角的折線形式,從入料端到出料端物料層厚度是不變.各段篩面上物料量與流速比值穩定、料層高,呈現均勻狀态,篩分效率顯著提高,比相同有效面積振動篩的處理量提高1-2倍,對於(yú)細粒含量高,特别是物料中料度占分級粒度尺寸小於(yú)1/2的物料含量較大時,香蕉型振動篩分機具有極高的篩分效率.







